Ένα υπερσύγχρονο Συνεδριακό Κέντρο, που τοποθετεί την πόλη στον παγκόσμιο χάρτη των εκδηλώσεων, αποκτά η Λάρισα, με τις διαδικασίες για τη χρηματοδότηση του έργου να έχουν ήδη δρομολογηθεί. Δήμος Λαρισαίων και Περιφέρεια Θεσσαλίας «έδωσαν τα χέρια» την περασμένη Τετάρτη, με τον Περιφερειάρχη, κ. Δημήτρη Κουρέτα και τον Δήμαρχο, κ. Θανάση Μαμάκο να ανακοινώνουν επίσημα την ένταξη του έργου στο πρόγραμμα της Περιφέρειας Θεσσαλίας.
«Είναι μια δομή που έλειπε από την πόλη μας. Με αυτή την εξέλιξη, τοποθετούμε τη Λάρισα δυναμικά στον χάρτη των παγκόσμιων εκδηλώσεων, κάνουμε ακόμη ένα βήμα ώστε η πόλη μας να γίνει πρωταγωνίστρια σε μεγάλα γεγονότα, να καταστεί τρίτος πόλος ανάπτυξης στη χώρα», δηλώνει χαρακτηριστικά ο Δήμαρχος Λαρισαίων, κ. Θανάσης Μαμάκος.
Να σημειωθεί ότι υπάρχει ήδη ολοκληρωμένη μελέτη, στον Δήμο Λαρισαίων, για την ανάπτυξη του Συνεδριακού Κέντρου Λάρισας, στην οικοπεδική έκταση του ΕΘΙΑΓΕ, στη συμβολή των οδών Καλλισθένους και Θεοφράστου, όπου σήμερα βρίσκονται τέσσερις αποθήκες του Ιδρύματος.
Η υπερσύγχρονη δομή αναμένεται να πάρει τη θέση της Αποθήκης 4, η οποία θα μετασχηματιστεί, σύμφωνα με τη μελέτη, και θα περιλαμβάνει τις συνεδριακές εκδηλώσεις που θα φιλοξενούνται. Το Συνεδριακό Κέντρο Λάρισας, θα στεγαστεί σε κτιριακή υποδομή τριών ορόφων, συνολικού εμβαδού περίπου 3.000 μ2, με δυναμική φιλοξενίας εκδηλώσεων για περισσότερα από 500 άτομα στο κεντρικό αμφιθέατρο, το οποίο θα έχει τη δυνατότητα διαχωρισμού σε χώρους φιλοξενίας και για μικρότερες εκδηλώσεις.
Πιο αναλυτικά, το αμφιθέατρο, που θα αποτελεί και την «καρδιά» του Συνεδριακού Κέντρου, θα βρίσκεται στο ισόγειο και θα έχει τη δυνατότητα διαχωρισμού σε δύο μικρότερα (περίπου 350 και 200 θέσεων, αντίστοιχα), για την παράλληλη και εναλλακτική χρησιμοποίησή τους σε διοργανώσεις συνεδρίων, ημερίδων, μουσικές και λοιπές εκδηλώσεις πολιτισμού και τέχνης.
Το Κέντρο θα διαθέτει τους απαιτούμενους χώρους (σκηνής, φουαγιέ, παρασκηνίων, βοηθητικών αποθηκών καθώς και χώρους υγιεινής (χωριστούς για την πλήρη ανεξαρτησία των δύο αμφιθεάτρων) για τους επισκέπτες, αλλά και επισκέπτες ΑμεΑ, καθώς έχει προβλεφθεί να είναι πλήρως προσβάσιμο στους ανθρώπους με κινητικά προβλήματα.
Ο περιμετρικός εσωτερικός χώρος που δημιουργείται πέριξ των δύο αμφιθεάτρων θα μπορεί να χρησιμοποιείται για τη φιλοξενία μεγάλης κλίμακας εκθέσεων, καθώς το ύψος της δομής (6μ) δίνει τη δυνατότητα για μεγάλες εκθεσιακές επιφάνειες, πλήρως εξοπλισμένες (φωτισμό και συστήματα ανάρτησης).
Η κύρια είσοδος του συγκροτήματος είναι τοποθετημένη επί της οδού Καλλισθένους, απέναντι από το νέο κτίριο της περιφέρειας Θεσσαλίας, ενώ περιμετρικά του κτιρίου δημιουργείται χώρος πρασίνου σημαντικής έκτασης.
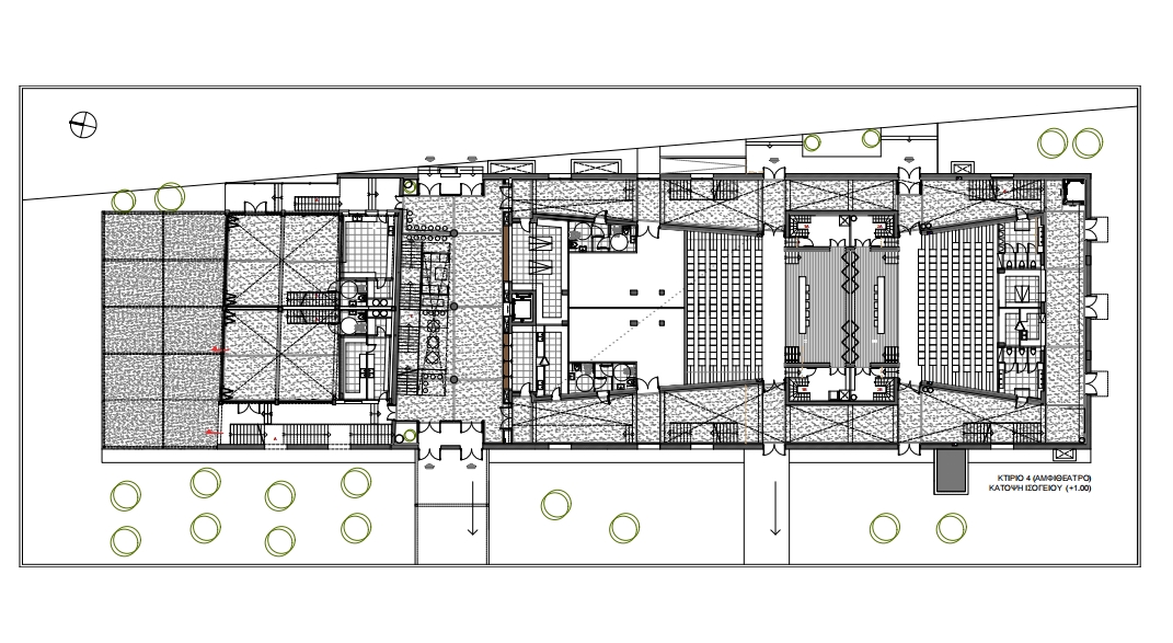
Η διάρθρωση της κτιριακής υποδομής.

Ισόγειο:
- Αμφιθέατρο 524 θέσεων (484,19 μ2) (με δυνατότητα διαχωρισμού σε δύο μικρότερα αμφιθέατρα των 334 θέσεων το μεγάλο (312,9 μ2) και 190 θέσεων το μικρό (171,28 μ2), για ανεξάρτητες παράλληλες εκδηλώσεις
- Χώρος σκηνής 97,39 μ2 (56,23 μ2 η μεγάλη και 41,16μ2 η μικρή)
- Βοηθητικοί χώροι παρασκηνίων
- Φουαγιέ αμφιθεάτρων
- Χώροι εκθέσεων διπλού ύψους, οι οποίοι μπορούν να επεκταθούν και στους χώρους των δύο φουαγιέ
- Χώροι υγιεινής και ξεχωριστά χώρους υγιεινής ΑμεΑ
- Χώροι κυλικείου για την εξυπηρέτηση των δύο φουαγιέ των αμφιθεάτρων (χωριστή εξυπηρέτηση)
- Αποθήκες κυλικείων και αποθηκευτικοί χώροι
- Βεστιάρια
- Υπαίθρια καθιστικά και πέργκολες 210 μ2 για την θερινή περίοδο
- Εστιατόριο και κουζίνα εστιατορίου (συν αποθήκη)
- W.C ΑΜΕΑ εστιατορίου
- Καφέ
- Μπαρ καφέ
- Χώρος προετοιμασίας καφέ (συν αποθήκη)
- Χώροι υγιεινής ΑΜΕΑ καφέ
- Υπαίθρια καθιστικά και πέργκολες, για τη θερινή περίοδο.

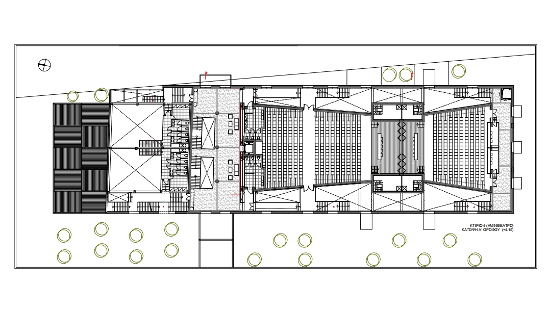
1ος όροφος:
- Φουαγιέ 1 – Β’ επίπεδο
- Φουαγιέ 2 – Β’ επίπεδο
- Παρασκήνια
- Μεταφραστές (αμφιθεάτρου)
- Χώρος ελέγχου φωτισμού και ήχου (αμφιθεάτρου)
- Χώροι υγιεινής (αμφιθεάτρου)
- Αποθήκη εστιατορίου
- Αποθήκη καφέ
- Χώροι υγιεινής καφέ
- Χώροι υγιεινής εστιατορίου
2ος όροφος
- Γ’ επίπεδο φουαγιέ
- Γραφεία
- Χώρος Μεταφραστών
- Χώρος φωτισμού και ήχου
Υπόγειο
- Χώροι Η/Μ εγκαταστάσεων
- Αποθήκες
- Παρασκήνια
- Δεξαμενή πυρόσβεσης
- Μηχανοστάσιο πυρόσβεσης
Πηγή: Larissanet.gr































