Περπατώντας στον Βόλο διαπιστώνει κανείς ότι οι εγκαταλελειμμένες κατοικίες ή κατοικίες που το πέρασμα του χρόνου είναι εμφανές πάνω τους, είναι πολλές και σε διάφορες συνοικίες, από το κέντρο ως και περιφερειακά. Η ανάγκη για νέα, σύγχρονα κτίρια είναι μεγάλη και οι ιδιοκτήτες πλέον ακινήτων επενδύουν στην «επανάχρηση» των κατοικιών, δίνοντάς τους νέα πνοή.
Η «Adamakis Architects & associates» με επικεφαλής τον κ. Στέφανο Αδαμάκη παρουσιάζουν σε αυτό το τεύχος του Home Deco τρεις κατοικίες στον Βόλο, που αναγεννήθηκαν, μέσα από τη δική τους ματιά, αναβαθμίζοντας τοπικά τις γειτονιές και παρέχοντας στους ενοίκους τους ανέσεις που η σύγχρονη αρχιτεκτονική έχει να προσφέρει.
Η οπτική της αρχιτεκτονικής εταιρείας «Adamakis Architects & associates»
Η οικονομική κρίση της δεκαετίας 2010- 2020 και η μείωση της οικοδομικής δραστηριότητας σε νέες οικοδομές, οδήγησε πολλούς ιδιοκτήτες παλαιών υφισταμένων και απαξιωμένων κτιρίων στην ανακαίνισή τους προκειμένου να τα εκμεταλλευτούν προς όφελός τους.
Το φαινόμενο αυτό σχετικά νέο για τα ελληνικά δεδομένα, έχει μακρά προϊστορία για την Ευρώπη.
Όλες σχεδόν οι ευρωπαϊκές πόλεις δεν κατεδαφίζουν τα παλιά κτίρια, διατηρούν μεγάλα τμήματα του αστικού τους ιστού, συνεισφέροντας παράλληλα στην διατήρηση της ιστορικής διαστρωμάτωσης και της σύνδεσης των πόλεων με το ιστορικό τους παρελθόν.
Η πάγια τακτική είναι η αποκατάσταση και ανακαίνιση των παλιών κτιρίων και δευτερευόντως η κατασκευή νέων.
Τα πλεονεκτήματα της συγκεκριμένης πρακτικής είναι πολλά και άμεσα μετρήσιμα για την κοινωνία, την ιστορία και το περιβάλλον.
• Μικρότερη όχληση της γειτονιάς από τις κατεδαφίσεις και την αποκομιδή των μπάζων
• Μικρότερη μόλυνση του περιβάλλοντος (θόρυβος, σκόνη, κυκλοφοριακό)
• Εκμετάλλευση της ενσωματωμένης ενέργειας που υπάρχει στα υφιστάμενα κτίρια, με παρεπόμενο την μικρότερη σπατάλη ενέργειας κατά την κατασκευή.
• Παράλληλα με την οικοδομική , και στατική αναβάθμιση, η ενεργειακή αναβάθμιση σε κτίρια υψηλής ενεργειακής κατηγορίας (Α και Α+), συνεισφέρει στην οικονομικότερη διαχείριση και λειτουργία τους (μικρότερο κοστολόγια για θέρμανση και ψύξη) με αντίστοιχο όφελος των χρηστών και των ιδιοκτητών.
• Μικρότερη κοστολογική επιβάρυνση των ιδιοκτητών σε σχέση με την κατασκευή νέου κτιρίου
• Γρηγορότερη απόδοση της επένδυσης, λόγω του αισθητά μειωμένου χρόνου για τη αποκατάσταση και την ανακαίνιση σε σχέση με την κατασκευή νέου κτιρίου.
• Στην περίπτωση διατηρητέων κτιρίων, η δημιουργική ένταξή τους στον ιστό της πόλης συνεισφέρει στην σύνδεση του παρελθόντος με το παρόν και το μέλλον.
• Στην περίπτωση των μη διατηρητέων κτιρίων χωρίς ιδιαίτερο αρχιτεκτονικό χαρακτήρα , η αποκατάστασή τους ιδίως όταν συνοδεύεται και από ευφάνταστες αρχιτεκτονικές και μορφολογικές νέες χειρονομίες, δίνουν μία νέα φρέσκια και αναβαθμισμένη ματιά στον δραματικά παραμελημένο αστικό ιστό των Ελληνικών πόλεων.
Επιλέξαμε τρεις διαφορετικές περιπτώσεις αποκατάστασης και ριζικής ανακαίνισης εντός του αστικού ιστού της πόλης του Βόλου, ενός διαμερίσματος στην οδό Κασσαβέτη , ενός παλιού παραδοσικαού διώροφου πέτρινου κτίσματος (1935) στην οδό Λ. Βύρωνος με Χατζηαργύρη και μίας τριώροφης οικοδομής (1985) στην οδό Αχιλλοπούλου.
Υφιστάμενη τρίωροφη οικοδομή στην οδό Αχιλλοπούλου
Η τριωροφη οικοδομή αγοράσθηκε από τους νέους ιδιοκτήτες με σκοπό την εμπορική της εκμετάλλευση.
Η οικοδομή είναι κατασκευασμένη με σκελετό οπλισμένου σκυροδέματος και βρίσκονταν στο στάδιο του καραγιαπιού με ολοκληρωμένα τα σοβατίσματα και τα εξωτερικά κουφώματα αλουμινίου ξεπερασμένης όμως παλιάς τεχνολογίας .
Η πρόταση περιλαμβάνει ολοκληρωμένη παρέμβαση- αποκατάσταση για λειτουργική, αρχιτεκτονική, αισθητική αλλά και ενεργειακή αναβάθμιση του κτιρίου.
Εσωτερικά δημιουργήθηκαν από δύο διαμερίσματα (δυάρια) στον πρώτο και δεύτερο όροφο και ένα διαμέρισμα επίσης δυάρι σε τμήμα του ισογείου, στο οποίο βρίσκεται και η κοινόχρηστη είσοδος και κλιμακοστάσιο προς τους ορόφους.
Η ενεργειακή αναβάθμιση επέβαλλε νέα θερμομόνωση πάχους 10εκ στο δώμα και υγρομόνωση- ρύσεις των ομβρίων. Εσωτερικά στις πλάκες μεταξύ των ορόφων καθώς και στις πλευρικές τοιχοποιίες τοποθετήθηκε επίσης θερμομόνωση και ηχομόνωση πάχους 5εκ και τελική επιφάνεια πυράντοχη γυψοσανίδα. Τοποθετήθηκαν νέα κουφώματα με θερμοδιακοπή και ενεργειακούς υαλοπίνακες, και ανακατασκευάσθηκε πλήρως το δίκτυο ύδρευσης – αποχέτευσης καθώς και το ηλεκτρολογικό δίκτυο για την σωστή εξυπηρέτηση των νέων διαρρυθμίσεων.
Εσωτερικά τοποθετήθηκαν νέα δάπεδα από γρανιτοπλακάκι 60χ60 πάχους 10 χιλ και σχεδιάσθηκαν ντουλάπια κουζίνας, και σταθερά έπιπλα (γραφείο, βιβλιοθήκες κλπ).
Στα μικρού εμβαδού διαμερίσματα (35-40 μ2), δεν υπάρχουν χωρίσματα παρά μόνον στον χώρο του υπνοδωματίου και του λουτρού και οι υπόλοιπες λειτουργικές γωνιές δημιουργούνται από ελαφρά ξύλινη διάτρητη κατασκευή, και αντίστοιχης λογικής ψευδοροφή.
Εξωτερικά η όψη του υφιστάμενου κτιρίου είχε την λογική των άτυπων – ουδέτερων χωρίς καμία επεξεργασία όψεων των κτιρίων της περιόδου κατασκευής του. Αναγκαία κατά την απόψή μας ήταν και η μορφολογική επέμβαση να αντικατοπτρίζει σε κτίριο του 21ου αιώνα με σωστή επεξεργασία των όψεων από πλευράς υλικών, χρωματισμών κλπ.
Κατασκευάσθηκε προς τούτο μία δεύτερη μεταλλική όψη- φίλτρο ηλιοπροστασίας στην εξωτερική πλευρά των μπαλκονιών, η οποία αφενός προστατεύει από τον ηλιασμό και αφετέρου δημιουργεί μία ζώνη προστασίας και ανάσχεσης από τις δυσμενείς καιρικές συνθήκες. Περιλαμβάνει δευτερεύοντα μεταλλικό σκελετό από κοιλοδοκούς 60χ60 στερεωμένους στο οπλισμένο σκυρόδεμα των προβόλων και διάτρητη λαμαρίνα αλουμινίου με ορθογώνιες οπές σε χρώμα λευκό.
Τμήματα των όψεων παραμένουν ανοιχτά χωρίς την Β’ όψη για να υπάρχει θέα προς το Πήλιο και για σωστό φωτισμό και αερισμό των εσωτερικών χώρων των διαμερισμάτων.
Το εσωτερικό κιγκλίδωμα του κοινόχρηστου κλιμακοστασίου κατασκευάσθηκε από την ίδια λευκή διάτρητη λαμαρίνα που χρησιμοποιήθηκε στην κύρια όψη του κτιρίου.
Ο ακάλυπτος χώρος στο ισόγειο αναβαθμίσθηκε με μεταλλική πέργκολα και πράσινο και προσαρτίσθηκε στο διαμπερές διαμέρισμα του ισογείου. Στο ισόγειο διαχωρίσθηκε με ελαφρά ξύλινη διάτρητη κατασκευή από κατακόρυφες διατομές (30Χ80) και ο ημιυπαίθριος χώρος – βεράντα του ιδίου διαμερίσματος,
με δυνατότητα ανεξάρτητης εισόδου.
Θέρμανση με ατομικούς λέβητες φυσικού αερίου, οι οποίοι τοποθετήθηκαν σε ειδικά διαμορφωμένες εσοχές στα μπαλκόνια.
Κλιματισμός με τοπικές κλιματιστικές μονάδες.



Προυσίαση: Adamakis Architects & associates
Στέφανος Αδαμάκης Αρχιτέκτων Μηχανικός
Κώστας Αδαμάκης Αρχιτέκτων Μηχανικός, Ομότιμος Καθηγητής Π.Θ.
Μελέτη/ Κατασκευή: 2021-2022
Αρχιτεκτονική Μελέτη: Adamakis Architects & associates
Στέφανος Αδαμάκης Αρχιτέκτων Μηχανικός
Σύμβουλος μελέτης: Κώστας Αδαμάκης Αρχιτέκτων Μηχανικός,
Ομότιμος Καθηγητής Π.Θ.
Συνεργάτες:
Ελπινίκη Παύλου Αρχιτέκτων Μηχανικός
Ιωάννα Κωστοπούλου Αρχιτέκτων Μηχανικός
Εύη Βρούζα Αρχιτέκτων Μηχανικός
Φωτογράφος: Βαγγέλης Ξένος (τελικές), Κώστας Αδαμάκης (υφιστάμενο)
Φωτορεαλιστικές απεικονίσεις: Ιωάννα Κωστοπούλου
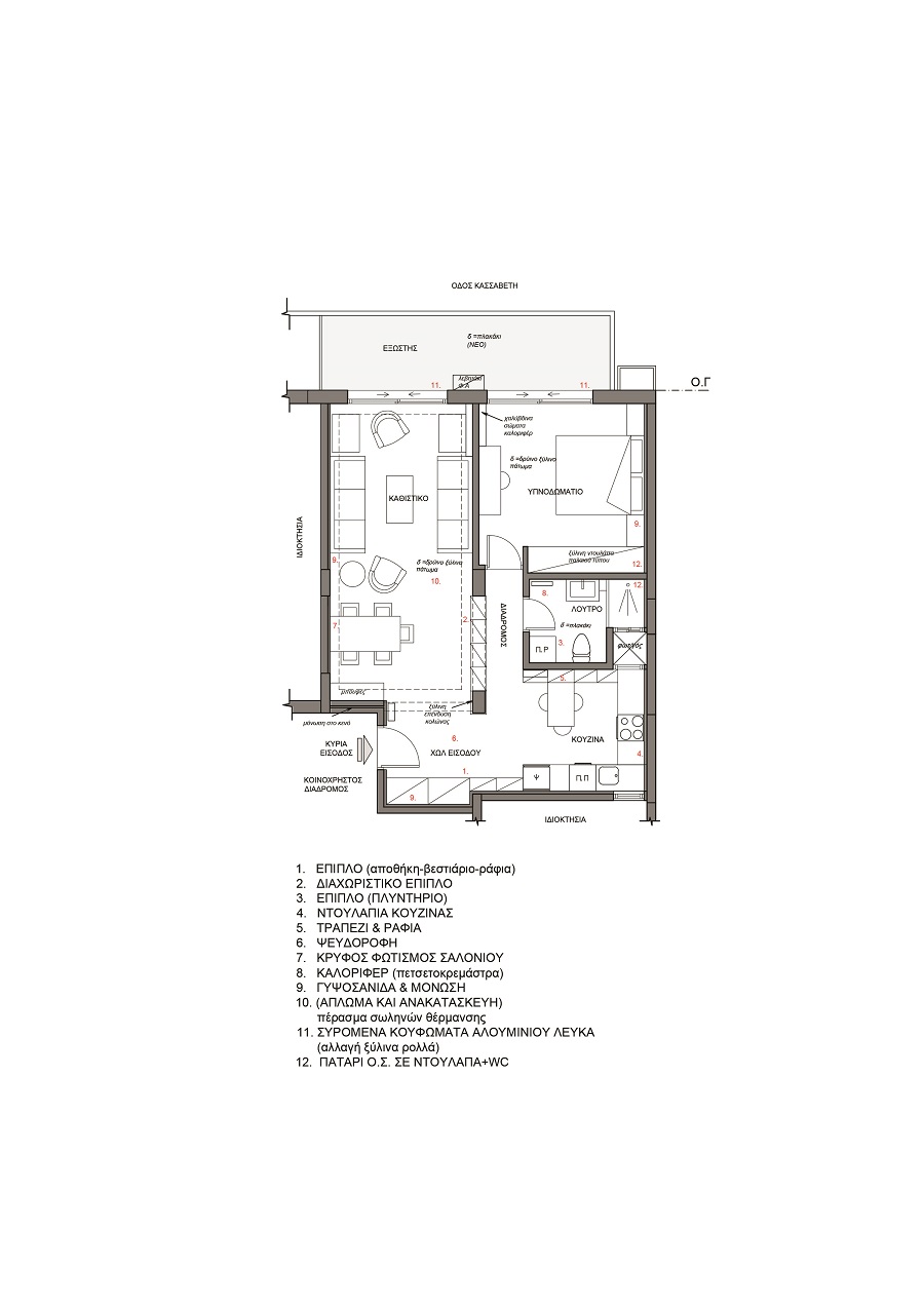
Διαμέρισμα Γ΄ ορόφου στην οδό Κασαβέτη
Το διαμέρισμα βρίσκεται σε πολυώροφη πολυκατοικία κατασκευασμένη την δεκαετία του 1970 – 80 επί της οδού Κασσαβέτη και θα χρησιμοποιηθεί για ιδιόχρηση ζευγαριού ( Β΄κατοικία) με μόνιμη διαμονή στην Αθήνα.
Η υφιστάμενη κατάσταση στο εσωτερικό αντικατοπτρίζει τη λογική κατασκευής της περιόδου εκείνης με κατακερματισμένο το εμβαδόν του διαμερίσματος σε μικρούς χώρους, χωλ, διαδρόμους και κλειστή σκοτεινή κουζίνα σε φωταγωγό.
Η μελέτη αναδιαρρύθμισης προτείνει κατεδάφιση όλων των εσωτερικών τοιχοποιών εκτός εκείνης του ανεξάρτητου χώρου του υπνοδωματίου και του λουτρού.
Η ενοποίηση όλων των επί μέρους χώρων, του χωλ της εισόδου, της κουζίνας, του χώρου υποδοχής και του διαδρόμου προς το υπνοδωμάτιο και λουτρό έδωσε σημαντική ανάσα στο διαμέρισμα μεγαλώνοντας κατ’ ουσία προοπτικά, ποιοτικά αλλά και λειτουργικά τον ωφέλιμο εσωτερικό χώρο.
Οι επί μέρους γωνιές δημιουργούνται με σταθερά χρηστικά έπιπλα, κατασκευασμένα από μελαμίνες σε λευκό χρώμα και χρώμα ανοιχτόχρωμου ξύλου, πάχους 25χιλ..
Αποξηλώθηκε το παλιό ξύλινο δάπεδο λόγω της καταστροφής του από υγρασία. Το νέο δάπεδο κατασκευάστηκε με θερμομόνωση πάχους 5 εκ ,τσιμεντοκονία πάχους εκ και τελική επιφάνεια κολλητό γρανιτοπλακάκι διαστάσεων 60χ60 πάχους 10χιλ σε ύφος παλιού έγχρωμου μωσαϊκού.
Εσωτερικά προς την πλευρά της μεσοτοιχίας προστέθηκε ηχομόνωση πάχους 5 εκ. και τελική επιφάνεια πυράντοχη γυψοσανίδα. Στον χώρο της εισόδου κατασκευάσθηκε εν είδη ψευδοροφής φωτιστικό με μεταλλική κατασκευή και οπαλίνα σε όλο σχεδόν το εμβαδόν του χώρου εισόδου. Στον χώρο υποδοχής και στην κουζίνα κατασκευάστηκε ψευδοροφή και κρυφός περιμετρικός φωτισμός.
Θέρμανση με ατομικό λέβητα φυσικού αερίου, ο οποίος τοποθετήθηκε στο μπαλκόνι.
Κλιματισμός με τοπικές κλιματιστικές μονάδες.

Προυσίαση: Adamakis Architects & associates
Στέφανος Αδαμάκης Αρχιτέκτων Μηχανικός
Κώστας Αδαμάκης Αρχιτέκτων Μηχανικός, Ομότιμος Καθηγητής Π.Θ.
Μελέτη/ Κατασκευή: 2021
Αρχιτεκτονική Μελέτη:
Adamakis Architects & associates
Στέφανος Αδαμάκης Αρχιτέκτων Μηχανικός
Σύμβουλος μελέτης:
Κώστας Αδαμάκης Αρχιτέκτων Μηχανικός, Ομότιμος Καθηγητής Π.Θ.
Συνεργάτες:
Ελπινίκη Παύλου Αρχιτέκτων Μηχανικός
Ιωάννα Κωστοπούλου Αρχιτέκτων Μηχανικός
Εύη Βρούζα Αρχιτέκτων Μηχανικός
Φωτογράφος: Βαγγέλης Ξένος (τελικές), Κώστας Αδαμάκης (υφιστάμενο)
Φωτορεαλιστικές απεικονίσεις:
Ιωάννα Κωστοπούλου
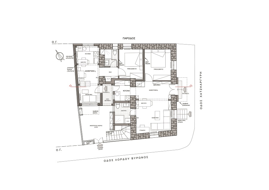
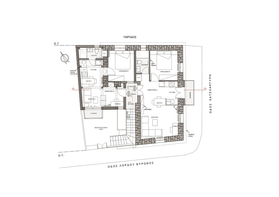
Υφιστάμενη διώροφη πέτρινη κατοικία επί των οδών Λ. Βύρωνος και Χατζηαργύρη
Η διώροφη προσεισμική πέτρινη κεραμοσκεπής κατοικία (1937), με μεταγενέστερες προσθήκες (από το 1965, έως το 1980) ευτελούς κατασκευής αγοράσθηκε από τους νέους ιδιοκτήτες με σκοπό την εκμετάλλευση.
Η αρχιτεκτονική πρόταση προτείνει την διατήρηση του πέτρινου διώροφου κτιρίου και την ριζική δομική ανασύνταξη των μεταγενέστερων χωρίς αρχιτεκτονικό ενδιαφέρον και με πολλά ζητήματα στατικής επάρκεια, με την κατασκευή νέου εσωτερικού φέροντα οργανισμού με μεταλλική κατασκευή.
Η νέα διαμερισματοποίηση περιλαμβάνει συνολικά τέσσερα μικρά διαμερίσματα, από δύο σε κάθε όροφο (δυάρια από 38 έως 50μ2).
Το παλιό κτίριο διατηρεί τα μορφολογικά του χαρακτηριστικά με τα απλά νεοκλασσικά στοιχεία (συμμετρικά ανοίγματα, ξύλινη κεραμοσκεπής στέγη, ξύλινα κουφώματα, μαρμάρινο μπαλκόνι).
Η αποκατάσταση περιλαμβάνει την αντικατάσταση της στέγης με νέα εμφανή από τρικολλητή ξυλεία, την ενίσχυση των περιμετρικών φερόντων πέτρινων τοίχων με οπλισμένο επίχρισμα, και την προσθήκη περιμετρικής σεναζογρηπίδας από οπλισμένο σκυρόδεμα για την ασφαλή στήριξη των ζευκτών της στέγης.
Τα κουφώματα αντικαταστάθηκαν
με νέα ξύλινα της ιδίας μορφολογίας με τα υφιστάμενα (δίφυλλα, ξύλινα με γαλλικά παντζούρια, και διπλούς ενεργειακούς υαλοπίνακες).
Οι δίφυλλες ξύλινες ταμπλαδωτές πόρτες των εισόδων στην οδό Χατζηαργύρη και την αυλή στον
Α’ όροφο διατηρήθηκαν και αποκαταστάθηκαν με νέους χρωματισμούς.
Τα ξύλινα πατώματα υπογείου και οροφής ισογείου διατηρήθηκαν και ενισχύθηκαν με κρυφή μεταλλική κατασκευή από πλέγμα κοιλοδοκών, που στηρίχθηκαν στους περιμετρικούς φέροντες τοίχους.
Διατηρήθηκε η σχέση κτισμένου και ακάλυπτου χώρου, η σκάλα επικοινωνίας του Α’ ορόφου μέσω της μικρής αυλής επί της οδού Λ.Βύρωνος, και τα παλιά μεταλλικά κιγκλιδώματα της περίφραξης και του κλιμακοστασίου.
Η νέα μεταλλική κατασκευή για την ενίσχυση των μεταγενέστερων χωρίς στατική επάρκεια προσθηκών διατηρήθηκε εμφανής στο εσωτερικό των δύο διαμερισμάτων που έχουν είσοδο και πρόσωπο στην αυλή και την οδό Λ. Βύρωνος.
Δύο νέα μορφολογικά και λειτουργικά στοιχεία κατασκευάσθηκαν στην Νότια πλευρά προς την αυλή, ένα μεταλλικό μπαλκόνι με ξύλινη πέργκολα και επικάλυψη φύλλα διαφανούς πολυκαρβονικού, και ένα μεταλλικό στέγαστρο για την προστασία της ανόδου από την σκάλα του Α’ ορόφου.
Τα κουφώματα των προσθηκών κατασκευάσθηκαν από διατομές αλουμινίου σε χρώμα γκρι μεταλλικό.
Οι νέες αρχιτεκτονικές χειρονομίες είναι διακριτές και δείχνουν τον μεταγενέστερο χρόνο κατασκευής τους σε αντιδιαστολή με τον χειρισμό των παραδοσιακών λεπτομερειών του υφιστάμενου πέτρινου κτιρίου.
Μελετήθηκαν όλα τα σταθερά έπιπλα
(γραφεία, βιβλιοθήκες, ντουλάπες υπνοδωματίων), και τα ντουλάπια των κουζινών κατασκευάσθηκαν από έντονα χρώματα μελαμίνης (κεραμιδί, μπλε, κίτρινο, και πετρόλ), χαρακτηρίζοντας και την εσωτερική αρχιτεκτονική των διακριτών διαμερισμάτων.
Θέρμανση με ατομικούς λέβητες φυσικού αερίου, οι οποίοι τοποθετήθηκαν σε ειδικά διαμορφωμένες εσοχές στα μπαλκόνια.
Κλιματισμός με τοπικές κλιματιστικές μονάδες.
Παρουσίαση: Adamakis Architects & associates
Στέφανος Αδαμάκης Αρχιτέκτων Μηχανικός
Κώστας Αδαμάκης Αρχιτέκτων Μηχανικός, Ομότιμος Καθηγητής Π.Θ.
Μελέτη/ Κατασκευή: 2019
Αρχιτεκτονική Μελέτη:
Adamakis Architects & associates
Στέφανος Αδαμάκης Αρχιτέκτων Μηχανικός
Σύμβουλος μελέτης:
Κώστας Αδαμάκης Αρχιτέκτων Μηχανικός, Ομότιμος Καθηγητής Π.Θ.
Συνεργάτες:
Ελπινίκη Παύλου Αρχιτέκτων Μηχανικός
Εύη Βρούζα Αρχιτέκτων Μηχανικός
Φωτογράφος: Στέφανος Αδαμάκης, Κώστας Αδαμάκης
Πηγή: Περιοδικό Home Deco



























































